Sol Center at Alta Verde
250 Net-Zero Rental Units
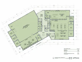
An 18,150 square foot building will house a community food market, thrift store, offices for FIRC and Building Hope staff, and meeting space for community partners. Currently, the two organizations operate out of five different buildings, stretching budgets thin and reducing collaboration opportunities. Having all services under one roof increases ease of access, reduces stigma, and encourages clients to seek services they otherwise might not.
commercial Buildout
